Caio Camargo
Work
Corbett Student Village
Wilcox Sustainable Passivhaus
College Bus Shelter
Cafe Renovation
Community Clinic
Crossroads Church
Custom Home
Other Drawings
Photography
About
Contact
Blog
Work
Corbett Student Village
Wilcox Sustainable Passivhaus
College Bus Shelter
Cafe Renovation
Community Clinic
Crossroads Church
Custom Home
Other Drawings
Photography
About
Contact
Blog
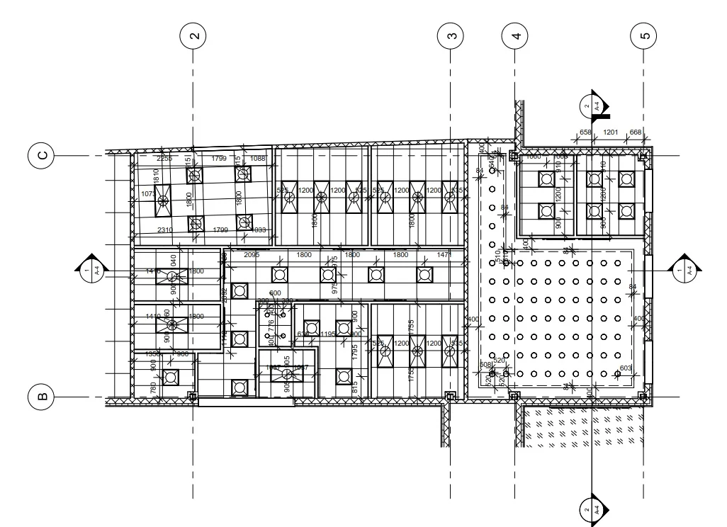
Community Clinic
Community Clinic
This Community Clinic was designed as part of a BIM exercise.
Featured
Concept
Floor Plan
Reflected Ceiling Plan
Section Details
Wall Details
Perspectives
Perspectives
Renderings